architekturbüro witzel
Home
Büro
Projekte
Impressum
Gutenbergschule Eschollbrücken Bilder
Klassentrakt
Klassentrakt
Bibliothek
Flur Klassen
Klassenraum
Zeichnungen
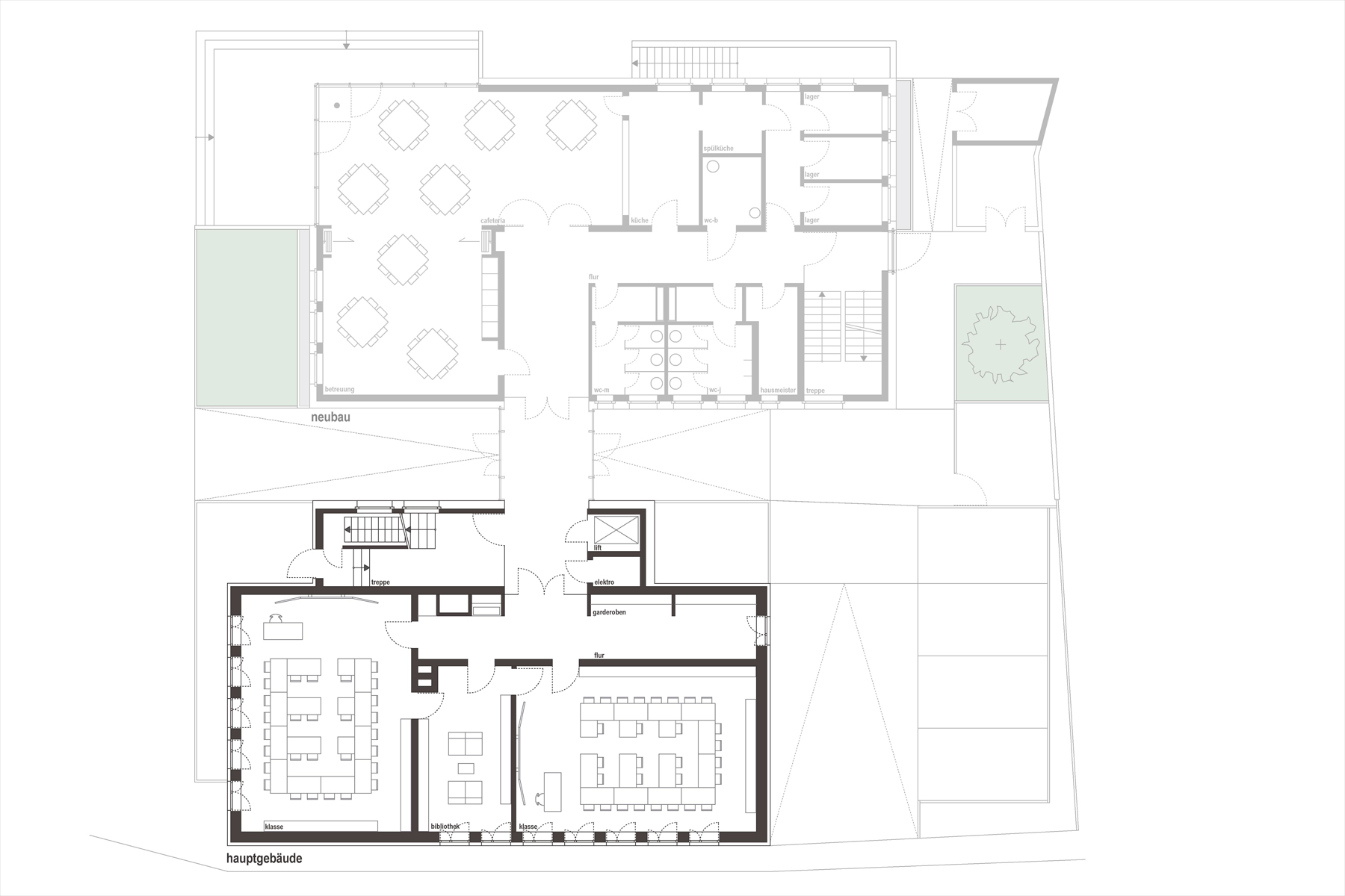
Grundriss EG
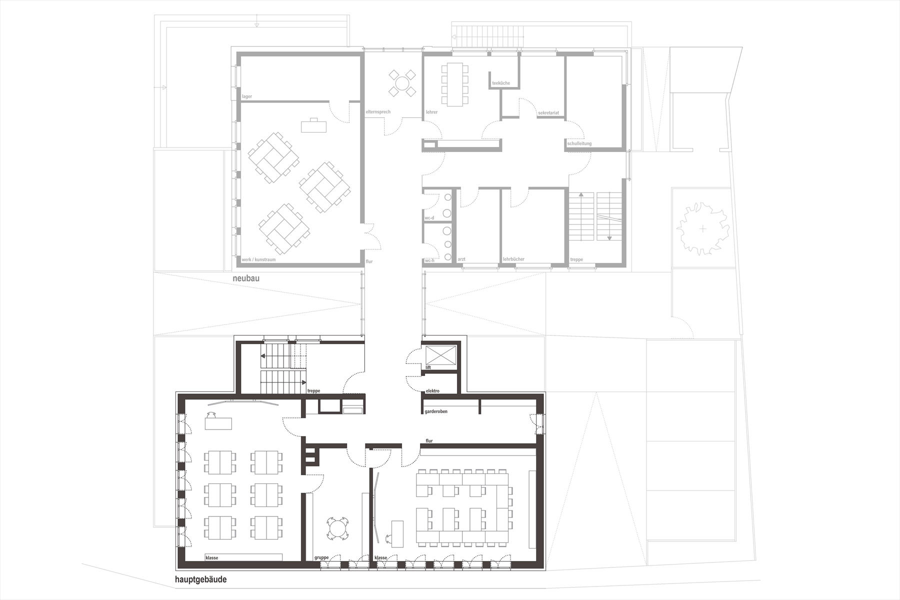
Grundriss OG
Ansicht Straßenseite
Bilder Vergleich Alt I Neu
Fassade Alt-Neu